As-Built Plans & Existing Conditions Drawings

Pasadena & Los Angeles

Cadnest provides accurate as-built plans and existing conditions drawings for residential properties throughout Pasadena, Los Angeles and surrounding communities. We work with contractors, homeowners and real estate investors to document existing structures and prepare clear CAD drawings ready for remodel planning, permitting and construction.

As-built drawings help establish a reliable foundation before starting additions, ADUs, remodels or property improvements.

What Are As-Built Plans?

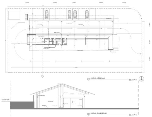
As-built plans document the current condition of a structure based on field measurements and site observations. They show how a building exists today, which is essential when preparing permit drawings, correcting previous undocumented work or planning new construction.

As-built drawings are commonly used for:

Remodel and renovation planning

Room additions and expansions

Garage conversion ADUs

Real estate property documentation

Permit corrections

Existing condition verification

Unpermitted structure documentation

Our As-Built Drafting Services
Field Measurements & Existing Conditions

We document:

Floor plans

Room dimensions

Window and door locations

Ceiling heights

Structural elements (visible conditions)

Exterior walls and openings

Layout configurations

Accurate measurements help reduce costly revisions later during design or construction.

Remodel & Addition Preparation

As-built drawings provide the base layer for:

Kitchen and bathroom remodels

Interior layout changes

Structural modifications

Room additions

ADU and garage conversion planning

Contractors use our as-built plans to move directly into design and permit drawing development.

Real Estate & Property Documentation

As-built plans are useful for:

Property purchase due diligence

Existing structure verification

Square footage documentation

Investment property evaluation

Insurance or appraisal support

Clear drawings help property owners understand the current configuration of their buildings.

Permit Corrections & Unpermitted Work Documentation

We assist with drafting for:

City correction responses

Documentation of previous alterations

Legalization of existing structures

Permit revision submissions

Clear existing condition drawings help streamline communication with plan check departments.

Who Uses Our As-Built Services

General contractors

Remodeling contractors

ADU builders

Real estate investors

Property owners

Design-build firms

Homeowners planning renovations

Whether you’re starting a remodel or evaluating a property, accurate as-built drawings provide a reliable starting point.

Why Choose Cadnest for As-Built Plans

Construction-oriented drafting approach

Clear, organized CAD drawings

Practical understanding of residential structures

Responsive turnaround for active projects

Familiarity with Pasadena and Los Angeles residential permitting environments

Consistent drafting standards for contractors with repeat work

Our goal is to deliver accurate documentation that supports efficient design and construction.

Service Area

Cadnest provides as-built plan services throughout:

Pasadena

Los Angeles

Glendale

Burbank

Arcadia

San Marino

Alhambra

San Gabriel Valley

Greater Los Angeles region within a broad service radius

If your property is within the Greater LA area, feel free to reach out to discuss your project.

Request As-Built Plans for Your Project

If you need accurate existing conditions drawings for a remodel, ADU, addition or property evaluation, Cadnest can help prepare clear and reliable as-built plans.

Gallery

Information icon

We need your consent to load the translations

We use a third-party service to translate the website content that may collect data about your activity. Please review the details in the privacy policy and accept the service to view the translations.