ADU Plans & Permit Drawings in Los Angeles

Cadnest provides professional drafting and permit-ready ADU plans for residential properties throughout Los Angeles and surrounding communities. We work with contractors, homeowners and real estate investors to prepare clear, buildable drawing sets ready for city submission and construction.

Our focus is practical layouts, efficient use of space and organized permit drawings that help projects move smoothly through the Los Angeles permitting process.

Complete ADU Drafting Support from Concept to Permit

Accessory Dwelling Units are one of the most effective ways to add value and living space to a property. Cadnest supports a wide range of ADU project types and provides drafting services tailored to Los Angeles zoning and permitting environments.

We assist with:

Existing conditions documentation

Conceptual layout drafting

Permit-ready construction drawings

Garage conversion layouts

City plan check revisions

Construction drawing updates during project development

Our goal is to help clients move from idea to approved plans efficiently.

Types of ADU Projects We Support
Detached ADUs

Drafting for new standalone accessory dwelling units including:

Studio ADUs

One-bedroom layouts

Two-bedroom configurations

Backyard cottage designs

We focus on efficient layouts that maximize livable space within zoning limitations.

Garage Conversion ADUs

Preparation of permit drawings for converting existing garages into legal dwelling units, including:

Existing conditions plans

Interior reconfiguration

Window and door modifications

Space optimization for small footprints

Garage conversions are one of the most common ADU types in Los Angeles and require clear, accurate drafting.

Attached ADUs

Drafting for additions connected to the primary residence including:

Side additions

Rear expansions

Integrated secondary units

We help organize layouts that maintain functional flow between structures while meeting code requirements.

Junior ADUs (JADU)

Preparation of small-unit layouts created within existing homes including:

Interior reconfigurations

Efficiency planning

Space-saving solutions

JADUs require thoughtful planning to maximize usability within compact areas.

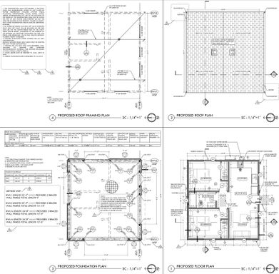
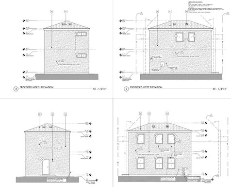
What’s Included in Our ADU Permit Drawings

Typical drawing packages may include:

Existing and proposed floor plans

Site plans

Elevations

Sections

Dimensioned layouts

Demolition plans

Construction-ready CAD drawings

We focus on organized drawing sets that support both permitting and construction clarity.

ADU Drafting for Contractors & Builders

Many contractors use Cadnest as an external drafting partner for recurring ADU projects.

We provide:

Repeatable drawing standards

Fast revisions based on redlines

Plan check correction drafting

CAD production support

White-label drafting if needed

Our contractor-oriented workflow helps builders scale ADU production efficiently.

ADU Drafting for Homeowners & Investors

We also work directly with:

Homeowners adding rental units

Property owners increasing housing capacity

Real estate investors developing value-add properties

Multi-property ADU development projects

Our focus is creating practical, buildable plans that align with project goals and construction realities.

Why Clients Choose Cadnest for Los Angeles ADU Plans

Construction-focused drafting approach

Experience with common LA residential project types

Efficient space planning for small units

Clear, organized drawing sets

Responsive revisions during permitting

Practical design solutions based on real-world construction workflows

We aim to help ADU projects move efficiently from concept through permit approval and construction.

Service Area

Cadnest provides ADU drafting services throughout Los Angeles and surrounding communities including:

Los Angeles

Pasadena

Glendale

Burbank

Arcadia

San Marino

Alhambra

San Gabriel Valley

Greater LA region within a wide service radius

If your project is within the Greater Los Angeles area, feel free to reach out to discuss your ADU plans.

Start Your ADU Project

If you are planning a garage conversion, detached ADU, JADU or attached ADU in Los Angeles, Cadnest can help prepare organized, permit-ready drafting for your project.

Gallery

Information icon

We need your consent to load the translations

We use a third-party service to translate the website content that may collect data about your activity. Please review the details in the privacy policy and accept the service to view the translations.